Trilocale in Borgoagnello

Paruzzaro

Scopri
Trilocale
Su 2 livelli
Giardino
Recintato
Box Auto
Incluso
Smart Home
+ Solare

Un'abitazione pensata per vivere bene

Questo trilocale su due livelli a Paruzzaro, completamente ristrutturato nel 2024, rappresenta un'opportunità rara: un immobile che unisce comfort abitativo, tecnologia e spazi verdi in un contesto residenziale tranquillo, a soli 2 minuti di auto dall'uscita autostradale di Arona.

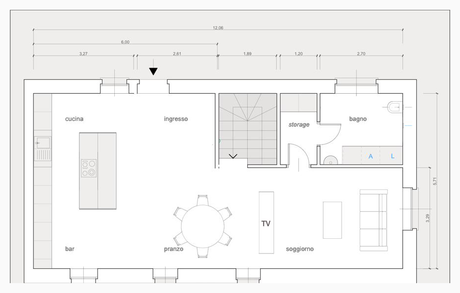
Il piano terra accoglie con un ingresso luminoso che conduce alla zona giorno open-space, dove cucina, zona pranzo e soggiorno si integrano in un ambiente armonioso. Le rifiniture di pregio e l'attenzione ai dettagli si percepiscono in ogni angolo.

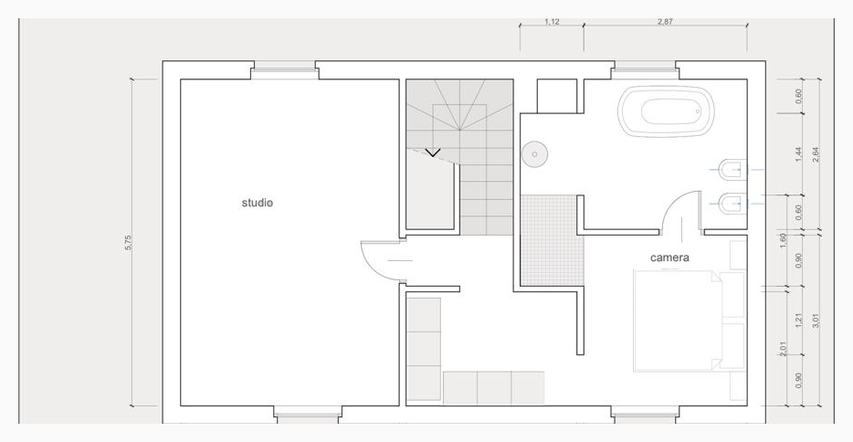
Il piano interrato, completamente abitabile, ospita uno studio versatile, la camera matrimoniale e il bagno padronale — garantendo la giusta separazione tra zona giorno e zona notte.

Il giardino recintato offre uno spazio all'aperto protetto e vivibile, mentre il riscaldamento autonomo, il sistema domotico integrato e i pannelli fotovoltaici rendono questa casa proiettata verso il futuro dell'abitare sostenibile.

Caratteristiche

  • Superficie totale: circa 120 mq su 2 livelli
  • Piano Terra: cucina, zona pranzo, soggiorno, bagno, storage, ingresso
  • Piano Interrato: studio (trasformabile in seconda camera), camera matrimoniale, bagno padronale
  • Giardino recintato
  • Box auto singolo spazioso incluso
  • Impianto fotovoltaico
  • Sistema domotico integrato BTicino (smart home)
  • Rifiniture di pregio
  • Classe energetica: C
  • Riscaldamento autonomo
  • Completamente ristrutturato nel 2024
  • A 2 minuti dall'uscita autostradale di Arona

Planimetria

Piano Terra

Planimetria Piano Terra

Piano Interrato

Planimetria Piano Interrato

Vuoi saperne di più?

Contatta Immobiliare Strategico per una visita privata

💬 Scrivici su WhatsApp

oppure scrivici a info@immobiliarestrategico.it